
市街地から車で15分ほどの芦花部にある売家です

庭も広く色々と活用できそうですね

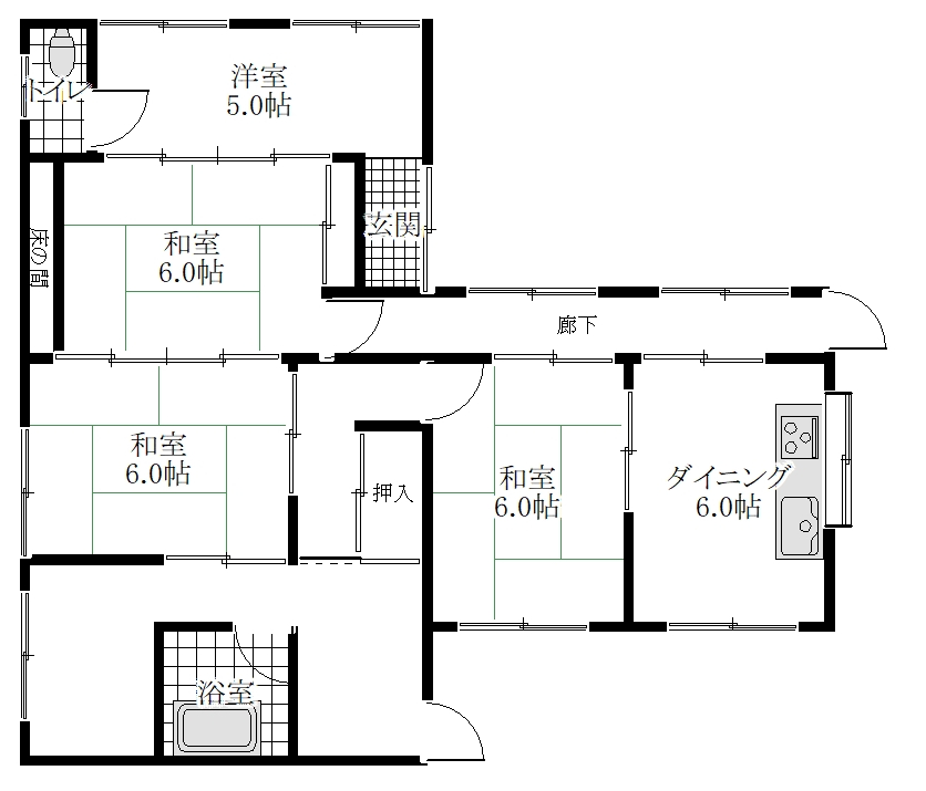
玄関

トイレ前のスペース

洋式トイレ

和室


浴室

台所前廊下

台所横の和室

台所

物件情報
| 所在地 | 奄美市名瀬芦花部 |
| 価格 | 700万 |
| 築年月 | 昭和44年 |
| 建物構造 | 木造亜鉛メッキ鋼板葺平家建 |
| 間取 | 3DK |
| 土地面積 | 380㎡/114.95坪 |
| 建物面積 | 81.30㎡/24.59坪 |
| 建蔽率/容積率 | 70%/400% |
| 地目 | 宅地 |
| 用途地域 | 無指定 |
| 土地権利 | 所有権 |
| 接道状況 | 公道/南側6m |
| 接道間口 | 3m |
| 設備 | 九州電力/公営水道/浄化槽/プロパン |

