
有屋町の閑静な住宅街にある一軒家

屋根付き駐車場は普通車が2台停められます

玄関スペース靴箱、収納もあります

玄関前廊下



キッチンスペース

キッチン横のリビングスペース


天井が高く部屋が広く感じます

道路側の洋室

天窓から光り差す

玄関横のトイレ

浴室横のトイレ

広縁

和室スペース

洋室

浴室

テラス

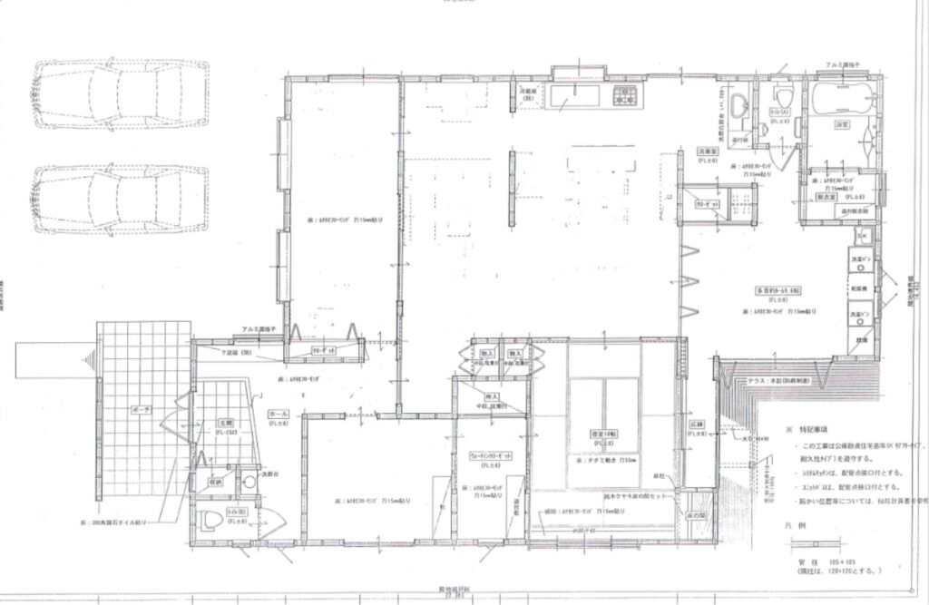
物件情報
| 所在地 | 奄美市名瀬有屋町 |
| 価格 | 6500万 |
| 築年月 | 2006年 |
| 建物構造 | 木造スレート葺平家建 |
| 間取 | 3LDKS+WIC |
| 土地面積 | 322.45㎡/97.54坪 |
| 建物面積 | 155.34㎡/46.99㎡ |
| 建蔽率/容積率 | 60%/200% |
| 地目 | 宅地 |
| 用途地域 | 第一種中高層住居専用地域 |
| 土地権利 | 所有権 |
| 接道状況 | 公道/北側6m |
| 接道間口 | 15m |
| 設備 | 九州電力/公営水道/公共下水/プロパン |


